UK Build Ideas

  • Some of the links on this forum allow SMF, at no cost to you, to earn a small commission when you click through and make a purchase. Let me know if you have any questions about this.
SmokingMeatForums.com is reader supported and as an Amazon Associate, we may earn commissions from qualifying purchases.
Gaviar, if you haven't yet,  take a look at the brick smoker page.   Lots of great folks there.    Between all of us, we can help you in anyway we can.    Folks from around the world who love making fire!  :-)

I'll be more the willing to help anyway I can.  
 
Hi Guys

Ok so the pizza idea has been thrown by the wayside and I am looking for the best i can for a smoker and grill. I still want a block built unit as i would like storage and a worktop of sorts outdoors. I guess I would like to know what sort of blocks should I use for the build. As I mentioned before I would like the block work rendered so heat is a consideration here also.

Do i need to build two skins of masonry, one blocks and the other kiln bricks and heat resistant insulation between the two.

Any ideas on materials is much appreciated.

Thanks all

Gav
 
 
Hi Guys

Ok so the pizza idea has been thrown by the wayside and I am looking for the best i can for a smoker and grill. I still want a block built unit as i would like storage and a worktop of sorts outdoors. I guess I would like to know what sort of blocks should I use for the build. As I mentioned before I would like the block work rendered so heat is a consideration here also.

Do i need to build two skins of masonry, one blocks and the other kiln bricks and heat resistant insulation between the two.

Any ideas on materials is much appreciated.

Thanks all

Gav
Good morning!

First off, if your just looking for a pizza oven just for pizza, you can make them much smaller then mine.   You can make them as small as 3 ft.x3 ft.   They heat up fast and cool down quick.   The only reason you would need something as heavy as what I built is for making bread.  It is designed to store heat over long periods of time.   Don't give up on an idea!    I saved up for 3 years to be able to build our oven.   

Gav,  I would use the double wall idea.   Reason being.   Block love to soak up moisture, so they wouldn't be ideal for the inside of the smoker, but they are great at making it stronger.   Firebrick or kiln brick do not soak up moisture because they are so dense.   They hold heat very well.  After all, its what there designed to do.  

Yes, I would leave a space between the two.   I used fiberglass insulation, because at the time I was unaware of vermiculite.   This space will give you the dead air space to let the insulation work.    I left 2in. between the two on my build.

Depending on space and funds, you wouldn't have to lay a face brick, but you'd need to lay it in a way that no water can get in.    

I feel firebrick are very important in a smoker.   There is some debate as to what to lay the firebrick with.   Being a smoker will very rarely see temps over 300F,  I used type S mortar mixed 2 parts sand, 1 part mortar.  A very rich mix that holds really well.   I did use fireclay on my oven simply because the vault of the oven reaches temps of over 1000F.

I hope this helps.   I'm aware firebrick can be costly, but over the long haul, you can't go wrong.    
 
  • Like
Reactions: gavlar
Hi all

Here are my drawings so far for this smoker build. I thought i would add a carjack bolted to a plinth below the grill area to raise and lower the coals towards the grill surface as required. I have added a gap between the smoker and the grill area, but having read the posts on here I am not sure if this is a good idea.

Love to hear your thoughts.

Gavlar

 
Hey Smokewood

Sorry for such the late response. Unfortunately i cannot be there but will be looking out for the photos of the weekend.

Thanks for the invite and hopefully next time..

Gavlar
 
Hi Gang

I know its been ages but i have now booked the builders in to start working on the garden landscaping which includes to cooking area. I have taken your advice and decided against the combined pizza oven idea.

My focus now is on a vertical smoker and horizontal grill, both made of rendered concrete blockwork. I will insulate with either firebricks or vermiculit concrete mix.

My  questions are:

Where can i get low cost doors for the smoker

Should i line my grill with firebricks or vermiculit on the floor and walls

Should I recycle the steel lid of my Brinkman Pitmaster as a lid/cover for the horizontal grill part of the new build

What method should I use to raise and lower the grill from the heat source - I did think of a car jack to raise the heat source from below to a static grill, may look nicer than the argentinian style with the wheel on the side raising the grill itself.

All suggestions and comments welcome. The build starts in a few weeks and will post all pics and updates.

Thanks all in advance

Gavlar
 
Hi Gav, I built a cobb pizza oven and couldn't run to the cost of fire bricks so I got my hands on some lining bricks from electrical storage heaters for the hearth. The oven is 7 years old now and the hearth is as good as the day it went in, the clay of the dome is starting to look a bit suspect now though. We've had hearth temps in excess of 400*C in it. I'm thinking of a brick replacement in the future and bought a book by Tom Jaine called Build a Wood Fired Oven for Bread and Pizza and although I wouldn't follow his design, there is info in there about substituting normal fired clay bricks instead of refractory ones and a mix for a lime based mortar instead of proprierty fireclay cement, which are the two most expensive parts of the build and are well within the temp range for a smoker.

Graeme.
 
Graeme

Thanks for the reply mate, i will look the book and thanks for your guidance. I am really keen to find out where i can get suitable doors for the brick smoker. Construction on this will start on Monday and i need to make sure i have the correct dimensions for the openings.

Does anyone on here know where i can get hold of suitable doors?

Thanks All

Gavlar
 
Hi Gav, I just put "cast iron door" into an ebay uk search and there were a few that came up that looked pretty good but not cheap. Do you have any of those reclamation yards or a decent scrap yard near you ? last time I was at my local scrappy, he had two old wood burning stoves that would have made good donors for doors.

Graeme.
 
Hi again

Hoping some of you guys can help me here as the work is starting on my build this week and next.

Looking at the smoker, it is going to be a straight vertical block build, i will get cast iron doors from eBay (as suggested by Jockaneezer - cheers for that) for the fire entrance and also to access the shelves higher up. So a couple of questions come to mind:
  1. Should i buy a fire grate and ash pan from a fireplace company to provide an airflow around the coals?
  2. Is there a rule of thumb for the distance from the fire or distance from the meat shelves for the water pan?
  3. How do i support the block work ceiling to the smoker and how wide and tall should the chimney be?
Looking at the separate brick BBQ - I am also looking for suggestions on how to adjust the distance between the meat and the fire source. my first thoughts was to integrate a car jack below and to raise and lower the fire source from the static grill, alternatively raising and lowering the grill from the static fire source. Keen to hear thoughts and what you guys have either built or seen before.

Not sure how to tag people on here but keen to hear thoughts from Wade and Wes too

Many thanks all

Gavlar
 
Hello Gavalar.

Copy your thread link: http://www.smokingmeatforums.com/t/199362/uk-build-ideas/40

Left click on Wes's avavatar.  You will see send private message on the left side of the screen under his avatar.  Click on that, paste your thread link and ask him to please take a start at post number 20.

Just my opinions: ( I have no experience with brick built )  I would think brick built should help hold the moisture and the water pan should not be needed.  
th_dunno-1%5B1%5D.gif
  Wes will know.  I LIKE options!  When I build I build "options" into the original design.  I would build so that I could move the grill up or down in say 6"-8" increments  This could be done by screwing angle iron on the brickwork after the mortar is set.  Maybe 10"-12" might be enough but anyway it would allow you to place the racks where ever you want them and also use a water pan if necessary.  This might be overkill but once it is built you don't want to tear anything apart or "WISH" you had done X, Y or Z.  This should be a once in a lifetime build.  Whether you use them or not; think hard and add all the bells and whistles now.


Fire grates and ash pans.  These may be tough to find for such a custom build.  For the fire grate in such a big unit  I would use 16 mm concrete reinforcement steel ( 20 would be better but slightly more expensive. )  Just one place: http://www.builderdepot.co.uk/high-tensile-reinforcement-bar-16mm-x-3m.html  You might find it cheaper.

Have is custom made by a local welder.  If you have a grinder cut the pieces yourself and have them weld it together.  Or weld it yourself if you have the skills.  Put at least 2 bars underneath the grate to help keep the grate from sagging.  For an ash pan; do you NEED one?  If so think out of the box.  Could you use baking trays and save money?  Or something else?  Maybe just aluminium foil to catch ash?  If not you can have a custom pan made by the local welder.  If you choose this option go with 6-8mm plate steel.  It should last for years!  That's the extent of my advice.  Wes will be able to help you more.  Post picts. of the build and the finished somkers.

Good luck.  Keep Smokin!

Danny
 
Hi Danny

Many thanks for your input, the steel rebar is a great idea and one i think i will use. The build started yesterday and i have asked the builders to hold off construction for now, just bring the blockwork out of the ground for now.

Looking at the build head on my idea is ti have the left hand size of the build to be a tall blockwork smoker which will extend above the level of the grill area at a lower level to the right hand side.

The attached pics gives you an idea of the size, its narrower than i had hoped which i hope wont be a problem. I have also taken advice from Graeme and checked out the cast iron doors on ebay, almost most all will have to come from Poland.

Please ask questions if i my thread is not clear.

Thanks All



 
Hello.  I am a lot out of my knowledge here but that is almost 9' long and what? 18"- 24" ID.?  Is that what your "firebox looks" like?  So the whole smoker is 18"-24" deep or I am missing something?  Also is that a concrete slab under those blocks?  If so does it run to the OD. of the structure they started and how deep is the foundation?  Did you contact Wes?  I can also contact him if you like.  I am glad you put the build on hold.  DO IT RIGHT THE FIRST TIME.  would be a shame to pay for the build and then find it is not usable.

Wes is your man here.  I just don't have the knowledge or know anyone else who does.  Keep Smokin!

Danny
 
Hi Danny

I sent Wes a PM as suggested, but not heard back yet.

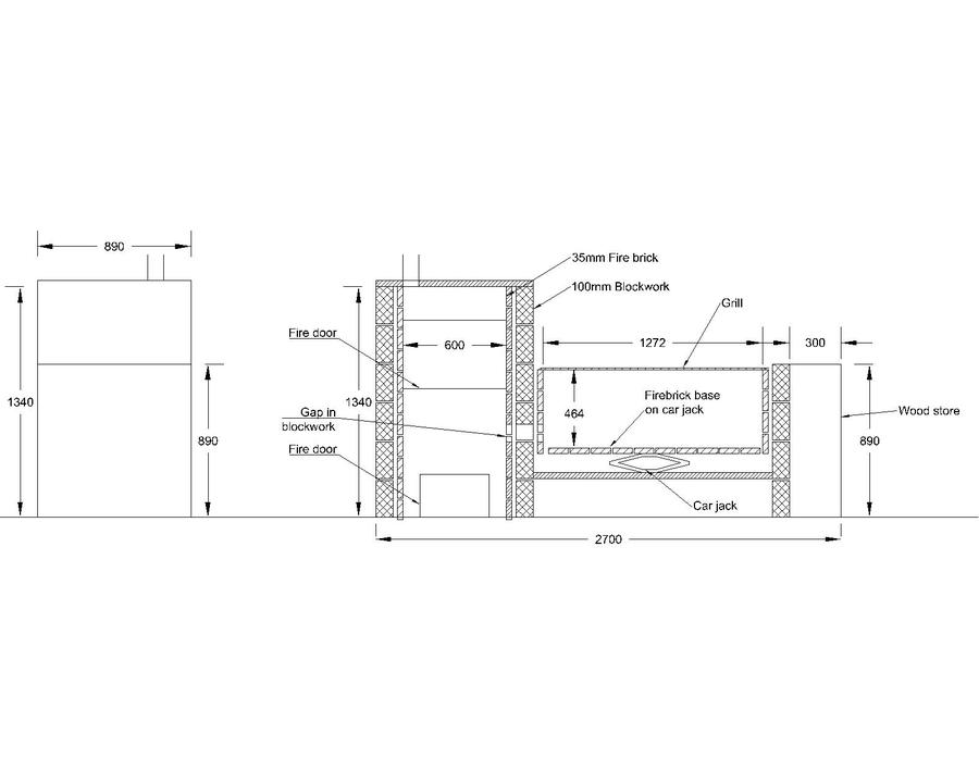
I have added the same pic but with some graphics to explain my thoughts. The blue is the smoker with the red boxed as the fire door to the bottom and another door above to access the smoked food, above to the rear will be a chimney with damper.

As part of the same construction there will be a grill area represented by the green box. The grill will now be fixed flush with the top finished surface, I am just considering how to lower and raise the coals below. Hidden car jack is still a thought, the scissor type you get with your spare wheel rather than the big ones garages use.

 
Hi Gav, I'm not able to provide any help on the smoker front as that knowledge eludes me but for the grill have you though of having a Santa Maria style system to raise and lower the cooking grate?

I don't know if it would be easier/harder than the jack system but it's just another option.

Look forward to seeing the completed build.
 
 
Hi again

Hoping some of you guys can help me here as the work is starting on my build this week and next.

Looking at the smoker, it is going to be a straight vertical block build, i will get cast iron doors from eBay (as suggested by Jockaneezer - cheers for that) for the fire entrance and also to access the shelves higher up. So a couple of questions come to mind:
  1. Should i buy a fire grate and ash pan from a fireplace company to provide an airflow around the coals?
  2. Is there a rule of thumb for the distance from the fire or distance from the meat shelves for the water pan?
  3. How do i support the block work ceiling to the smoker and how wide and tall should the chimney be?
Looking at the separate brick BBQ - I am also looking for suggestions on how to adjust the distance between the meat and the fire source. my first thoughts was to integrate a car jack below and to raise and lower the fire source from the static grill, alternatively raising and lowering the grill from the static fire source. Keen to hear thoughts and what you guys have either built or seen before.

Not sure how to tag people on here but keen to hear thoughts from Wade and Wes too

Many thanks all

Gavlar
Good morning Gavlar,

Sorry I didn't get your message sooner.   

1.   I was able to find a small fire grate online to put my fire on.  To hold the small ashes, I cut a piece of stretch metal and layed it on top of the grate.   Toward the end of a smoke when all is hot,  you won't need much fire at all.   


This is the best picture I have of the firebox.  The metal over the grate is the same metal I made the shelves from.  I believe its 1/2in. stretch metal.

2.  From the floor of the firebox to the water pan shelf  I built mine about 21in. up or however it works out with your brick work.   I just guessed at it.  It does work well at that distance.  Your water pan is going to block any open fire coming up.    Now, on a related note.  If I'm running a full smoker of pork, I do have to rotate about half way through.   I've never been able to figure out how to make the temp even all the way up.  The bottom does run hotter and by rotating,  everything finishes at the same time and comes out perfect.   From the water pan shelf to the first rack for me is 7 1/2 in.  The shelves are spaced the same on up.


Here is the bottom part being built.  The water pan shelf is between the two doors.   This shows how I made my shelves

3.  Once I went as high as I wanted with the oven chamber,  I started stepping the brick in to a point I could set a flue liner on it.  I used a 13 x 13in liner.  It is way big enough.  You only need a flue liner big enough that is equal or greater then the amount of air coming in the vents.   The reason I used a liner that big was so it would match the fireplace.  After setting your liner, just brick around it leaving at least 1/2 in space around it for thermal expansen.    If you use a chimney cap it will clamp on the flue liner.   A smoker won't ever get hot enough to need a flue liner, but it makes finishing the top a lot simpler.



Here is setting the flue liner.  I used a metal damper on top.   I can close it to help regulate the heat going out.   It does work great, but I don't recommend it if you plan on getting your smoker super hot, like 500F hot.   Heat and metal don't mix at high temps.  Needless to say I cracked the top of my smoker burning off some mold about 3 years back.  I had it up to about  600F.  It didn't cause any problems, it just looks bad.  


This is how I support the water pan. 1/4in steal plates.  I can also  move the outside plates if I need more heat or less.  I leave about 1/2in on sides and front and back for heat to come through when smoking pork.   full size foil pan serves as my water pan in the middle.  

I hope this helps.   If you have other questions, please ask.    I'm no expert.   This is just how I built mine.   It does work well for me.   Always glad to help anyway I can!
 
SmokingMeatForums.com is reader supported and as an Amazon Associate, we may earn commissions from qualifying purchases.
Great deal on LEM Grinders!

Latest posts

Hot Threads

Clicky