Ok, now I find that I've stepped in it and I need to see if you guys can help bail me out.
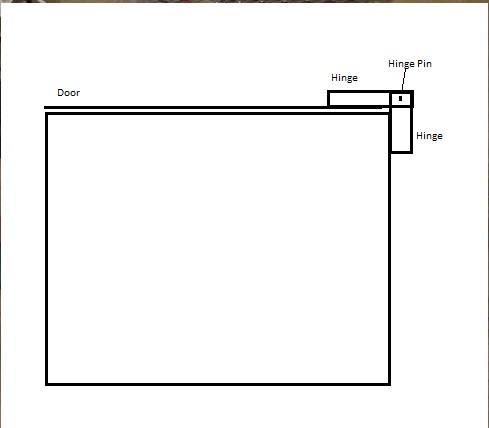
When I designed the FB door, I used a sliding plate vent system, also borrowed from MTMSEVEN.But, unlike him, I did not account for hinge placement, and now I find that I have nowhere to place my lower hinge because the sliding plate is in the way. Observe...
(note, the bottom is not bowed, it's camera distortion sue to my angle and focal length.)
I could make it work by cutting the opening on the right side of the plate off, but there's a catch... I have a rifle bolt and receiver that I plan to use as the door latch, and it has to go on the right side of the door. So. I need to figure out a good way to hinge the left side of this thing. My brother in law doesn't want to weld on the door any more than absolutely necessary for fear of springing it, as it's already had to spend some time in an industrial press to keep it in shape.
We tossed around some ideas and didn't settle on anything concrete, but we have a couple ideas. I really want to know if anyone here has any thought on how we can overcome this major design failure on my part.
When I designed the FB door, I used a sliding plate vent system, also borrowed from MTMSEVEN.But, unlike him, I did not account for hinge placement, and now I find that I have nowhere to place my lower hinge because the sliding plate is in the way. Observe...
(note, the bottom is not bowed, it's camera distortion sue to my angle and focal length.)
I could make it work by cutting the opening on the right side of the plate off, but there's a catch... I have a rifle bolt and receiver that I plan to use as the door latch, and it has to go on the right side of the door. So. I need to figure out a good way to hinge the left side of this thing. My brother in law doesn't want to weld on the door any more than absolutely necessary for fear of springing it, as it's already had to spend some time in an industrial press to keep it in shape.
We tossed around some ideas and didn't settle on anything concrete, but we have a couple ideas. I really want to know if anyone here has any thought on how we can overcome this major design failure on my part.
